
Для ИТ-поддержки полного цикла производства требуется формирование разнообразного ИТ-ландшафта, основанного на отечественном ПО. При этом более чем актуальна задача выстраивания комплексной системы проектирования, увязанной с процессами строительства и эксплуатации различных объектов.
При выборе программного обеспечения компания руководствуется следующими параметрами:
- интероперабельность программных продуктов;
- соответствие потребностям пользователей;
- автоматизация рутинных задач;
- возможность комплексного подхода в процессе внедрения и эксплуатации.

Процесс внедрения системы информационного моделирования и автоматизированного проектирования (СИМАП) разделен в компании на четыре основных этапа, которые реализуются последовательно.
Этап 1. Проектирование и тестирование системы
На этом начальном этапе закладывается фундамент будущей системы. Работы сфокусированы на создании проектной документации, подготовке методических материалов и проверке функциональности программного решения в тестовом окружении. Этап объединяет три ключевых блока:
- техническое проектирование – разработка архитектуры системы, технических требований и проектных решений;
- разработка регламентов и шаблонов – создание официальных документов, регулирующих работу в системе (регламенты), и стандартных шаблонов в соответствии с методологией CAIP;
- развертывание и тестирование CИМАП – установка программного обеспечения в тестовой среде, проведение всесторонних испытаний для проверки корректности его работы и соответствия требованиям.
Этапы 2 и 3. Внедрение системы
Эти этапы связаны с подготовкой персонала и началом эксплуатации системы. Работы идут по двум параллельным направлениям:
- интеграция CИМАП с окружением – настройка взаимодействия новой системы с существующим ИТ-ландшафтом компании (базами данных, системами и программным обеспечением);
- обучение пользователей – проведение тренингов для будущих пользователей, чтобы обеспечить их готовность к работе в новых условиях.
Этап 4. Опытно-промышленная эксплуатация
Финальный этап нацелен на проверку системы в реальных рабочих условиях и ее окончательную доводку. Он состоит из двух последовательных шагов:
- выполнение пилотных проектов – реальные проекты компании запускаются и разрабатываются в новой системе. Это позволяет оценить ее практическую эффективность и выявить возможные недочеты;
- доработка регламентов и шаблонов – по результатам пилотной эксплуатации в разработанные регламенты работы и шаблоны вносятся финальные корректировки, позволяющие оптимизировать процессы и адаптировать их под реальные потребности бизнеса.

Отдел промышленных предприятий института «Якутнипроалмаз» зачастую сталкивается с проектными задачами, для решения которых требуется функционал машиностроительных САПР. Вот лишь некоторые:
- трехмерное твердотельное и поверхностное моделирование – создание цифровых макетов деталей и сборок, максимально приближенных к реальным объектам;
- параметрическое проектирование – быстрое изменение модели путем редактирования ее параметров (размеров, зависимостей), что идеально при создании семейств однотипных изделий;
- создание библиотек стандартных и типовых элементов, управление такими библиотеками – операции с библиотеками болтов, гаек, подшипников, шпонок, а также деталей, специфичных для предприятия (нормалей);
- внедрение и контроль корпоративных стандартов – обеспечение единых правил оформления чертежей, использования слоев, шрифтов, стилей линий;
- совместимость с другими системами – возможность импорта/экспорта данных из/в другие системы;
- организация совместной работы над проектом – параллельная работа нескольких специалистов над различными компонентами одного изделия.
Для решения таких задач компания выбрала nanoCAD Механика PRO – специализированную машиностроительную САПР от компании «Нанософт».
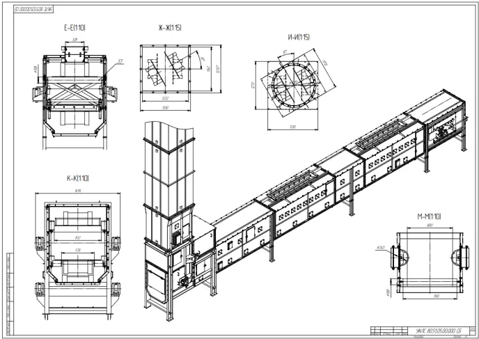
Когда 17 сотрудников института прошли обучение работе в этой программе, был инициирован пилотный проект: моделирование ленточного конвейера средствами nanoCAD Механика PRO и Model Studio CS Строительные решения.

Процесс моделирования был разделен на два этапа.
1) Моделирование основной геометрии конвейера в nanoCAD Механика PRO.

Благодаря возможностям работы с деталями (.dwp) и сборками (.dwz) система позволила оптимизировать создание 3D-модели конвейера. Процесс включал этапы моделирования отдельных деталей и их последующего объединения в сборки.

2) Интеграция 3D-модели конвейера в среду информационного моделирования
Интеграция 3D-модели конвейера в общую информационную модель по разделу ТХ выполнена с применением инструментов передачи моделей из nanoCAD Механика PRO в решения на Платформе nanoCAD. Модель конвейера в dwg-формате передана в Model Studio CS Строительные решения и стала органичной частью информационной модели ТХ.

В рамках общей стратегии СИМАП точечное внедрение специализированной машиностроительной САПР nanoCAD Механика PRO в отделе промышленных предприятий института «Якутнипроалмаз» заслуживает особого внимания. Это наглядный пример того, как общая стратегия реализуется на уровне конкретных подразделений, решающих уникальные задачи.
Потребности отдела были четко сформулированы: требовались инструменты продвинутого 3D-моделирования, параметрического проектирования, управления библиотеками стандартных элементов, а также корпоративные стандарты и обеспечение совместимости с другими системами. Выбор nanoCAD Механика PRO оказался стратегически верным: этот продукт полностью соответствует заявленным требованиям и хорошо встраивается в общий ИТ-ландшафт на базе Платформы nanoCAD.
Успех внедрения обеспечен комплексным подходом, включавшим обучение сотрудников и выполнение пилотного проекта, который наглядно продемонстрировал ключевые преимущества nanoCAD Механика PRO:
- эффективное моделирование сложных объектов – процесс создания 3D-модели конвейера был оптимизирован благодаря специализированному функционалу для работы с деталями (.dwp) и сборками (.dwz). Разделение на этапы моделирования отдельных деталей и их последующей сборки в сложную конструкцию соответствует лучшим практикам машиностроительного проектирования, поддерживает структурированность и управляемость проекта;
- наличие истории построений – мощного инструмента внесения изменений, анализа модели и коллективной работы, значительно повышающего гибкость и контролируемость проектного процесса;
- беспрепятственная интеграция в общую BIM-среду – ключевым достижением стала успешная передача модели в формате .dwg из nanoCAD Механика PRO в Model Studio CS Строительные решения. Она подтвердила интероперабельность программы: 3D-модель конвейера вошла в состав информационной модели ТХ.
Внедрение в АЛРОСА элементов СИМАП и, в частности, nanoCAD Механика PRO – это не просто замена одного программного решения другим. Это полноценная цифровая трансформация процессов проектирования, которая:
- повышает эффективность – автоматизация рутинных задач, использование библиотек и параметризация ускоряют процесс проектирования и сокращают количество ошибок;
- стандартизирует процессы – внедрение корпоративных стандартов через шаблоны и регламенты обеспечивает единообразие и высокое качество выходной документации;
- обеспечивает сквозную координацию – интеграция машиностроительного проектирования в общую BIM-среду устраняет информационные разрывы между различными этапами жизненного цикла объекта (от проектирования оборудования до строительства зданий);
- развивает компетенции – обучение и практическая работа с современными инструментами повышают квалификацию инженеров;
- укрепляет технологический суверенитет страны – успешное внедрение отечественного ПО доказывает возможность создания конкурентоспособных и эффективных рабочих мест на базе российских решений.
АК «АЛРОСА» (ПАО) – крупнейшая алмазодобывающая компания, мировой лидер по объему добычи и запасов алмазов. Основными направлениями деятельности являются геологоразведка, добыча и продажа алмазов, производство бриллиантов. Добывающие активы АЛРОСА расположены в Республике Саха (Якутия) и Архангельской области. В группе АЛРОСА работают более 30 тысяч человек.
Компания реализует полный цикл производства алмазной продукции и осуществляет собственными силами практически все обеспечивающие функции: от геологической разведки полезных ископаемых до огранки и сбыта продукции.
Институт «Якутнипроалмаз» – основной проектный институт компании, выполняющий все необходимые проектные работы для объектов строительства АЛРОСА.



