



Автоматические отчеты позволяют получить в табличной форме информацию из различных объектов чертежа. При этом между объектами и отчетом выстраивается двусторонняя связь

Концептуальное моделирование, в отличие от детального, фокусируется на создании пространственных моделей, отображающих общее представление о концепции и форме продукта или проекта

Интеграция с информационным моделированием позволяет улучшить координацию между всеми участниками проекта и ускорить процесс разработки

Автоматическое соблюдение стандартов и норм оформления проектной документации по ГОСТ помогает обеспечить соответствие требованиям и повысить качество работы

Интуитивно понятный интерфейс и поддержка форматов, популярных в строительной отрасли, делают работу самых разных пользователей эффективной и гибкой

Внешние ссылки (Xref) обеспечивают возможность использовать один и тот же файл (например, чертеж или блок) в нескольких проектах, что позволяет распределять задания между несколькими пользователями, оставаясь в единой среде проектирования

Ряд специальных команд (изменение размера, поворот, устранение перекоса, калибровка и др.) позволяет скорректировать геометрические искажения монохромных, цветных и полутоновых растровых изображений

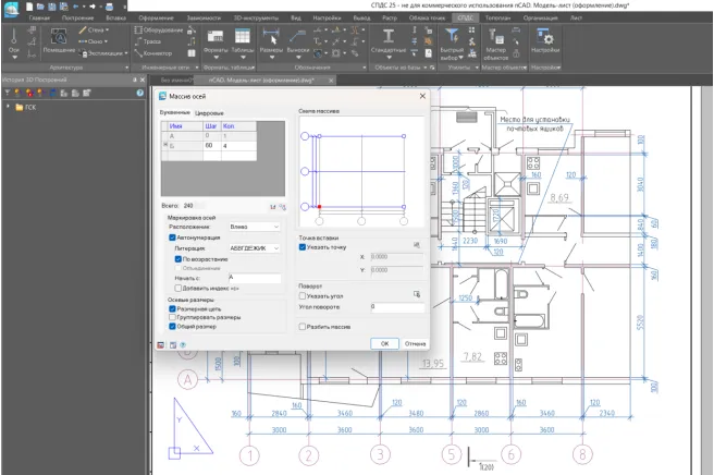
Наборы специальных инструментов для автоматической отрисовки координационных осей. В объектах поддерживается автоматическая нумерация согласно ГОСТ, автоматически устанавливаются ассоциативные размеры





